LOGIN
HOME
CATEGORIES
UPLOAD FILE
PRICING
HOUSE PLAN
ABOUT US
CONTACT US
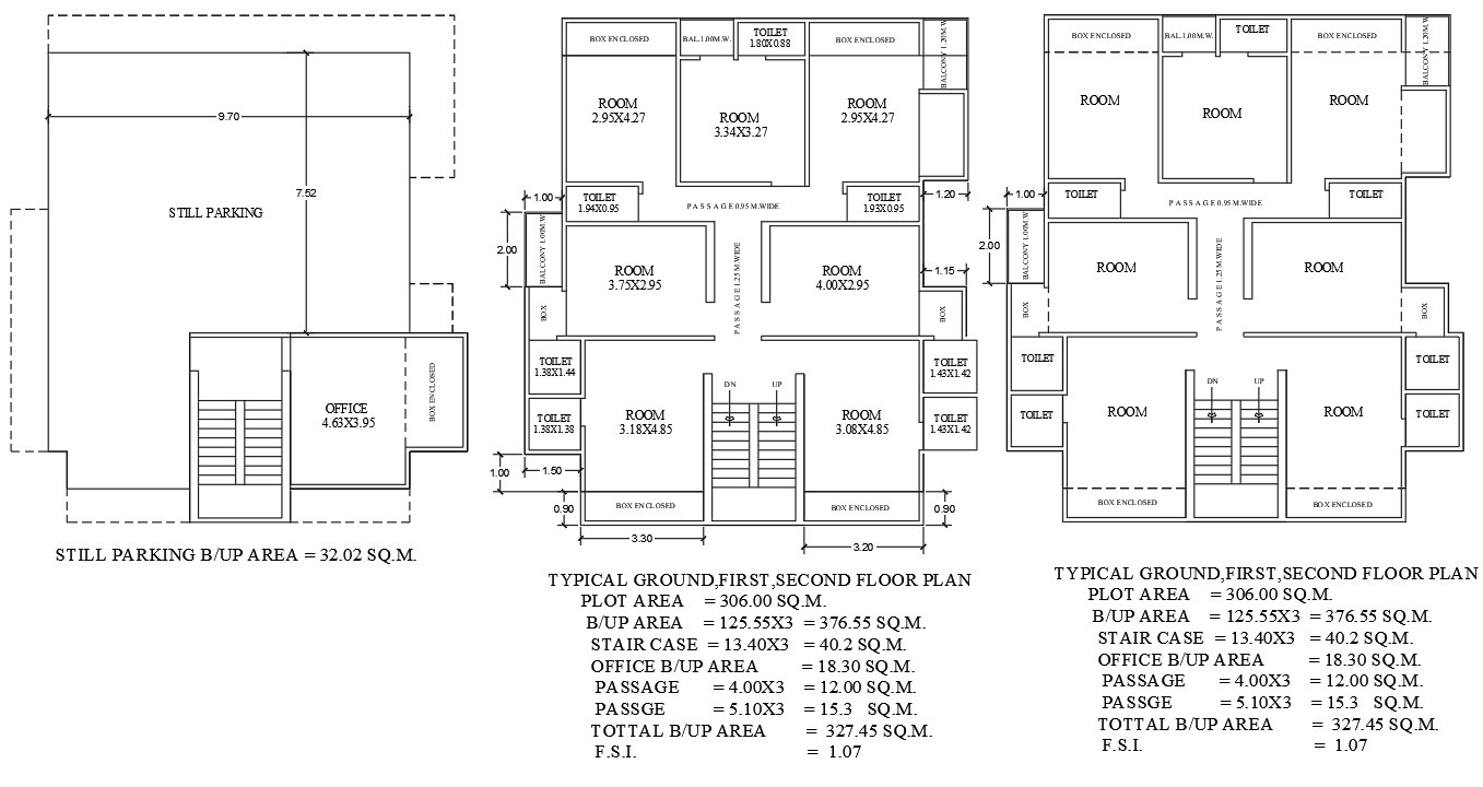
G plus 2 House Plan with Parking and Room Layout in CAD File
Home
Categories
Architecture
House Plan
G plus 2 House Plan with Parking and Room Layout in CAD File
Description
Download DWG plan showing stilt parking, office space, and typical ground, first, and second floor room layouts with measurements and total built-up area.
File Type:
DWG
Category::
Architecture
Sub Category::
House Plan
type:
Gold
Eiz
Luna
View Profile
View Profile
Download
Add to libary
find Latest
Related
Files