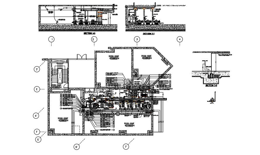
Detail drawing of all types of pumps used building.
Description
This Architectural Drawing is Detail drawing of all types of pumps used building. Fire pumps are an essential part of many water-based fire protection systems. They are used to increase the pressure (measured in psi and bar) of a water source when that source is not adequate for the system it's supplying. The most common household application for a booster pump is to pressurize the water that comes from the storage tank in homes that use a well water system. The main benefit of a booster pump installed in a home is increased water pressure to all water fixtures. Irrigation pumps are used to pump water from a lower to a higher level from which the water then flows through channels to the fields requiring irrigation (lift operation) or to raise it to the required pressure head so that it can be sprayed on the fields via piping systems (sprinkling). A sewage pump is used to transfer sewage liquids and solids from one place to another. Usually, in residential applications, sewage includes soft solids up to 2″ in diameter is pumped from a sewage basin to a sewer system or a septic tank. For more details and information download the drawing file.
